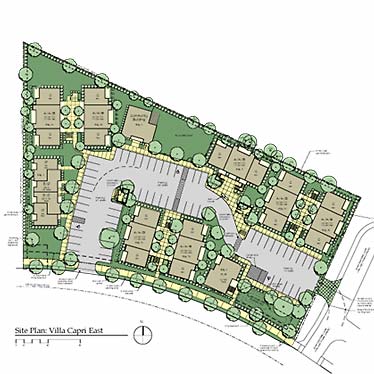
Portfolio > Multi-Family > Affordable Housing > Villa Capri East
Villa Capri East Apartments
Affordable Housing
Hillsboro, Oregon
© gen architects
<< Back to Project Listing